Двухуровневый пентхаус в ЖК «Lucky» («Лаки»), ул. 2-я Звенигородская, 12, 386 кв. м, 5-20/21-1 id объекта: 4922

ул. 2-я Звенигородская, 12
Вернуться в каталог
id объекта: 4922
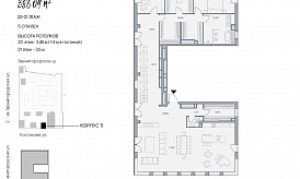
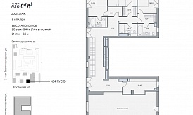
Площадь м2 386 м2
Этаж 20-21
Уровней 2
Отделка С отделкой
Терасса есть
Высота потолков 3.5
Количество сан. узлов 3
Отправить на почту
Описание объекта

Элитный жилой квартал «Lucky» (Лаки) находится в 200 метрах от станции метро Улица 1905 года, в Пресненском районе. Это тихая и спокойная часть московского центра, наполненная зеленью. 

«Lucky» можно условно разделить на «верхний» и «нижний» город. В нижнем городе располагается современная инфраструктура, паркинг на 730 машино-мест и общественные пространства – коммерческие помещения, магазины и многое другое. Верхний город – жилые части башен.

Один из приоритетов в «Lucky» – создание максимально комфортной среды и расширение арендаторского состава. Благодаря этому планируют реализовать концепцию «город в городе», соединяющую разностороннюю инфраструктуру и общественные пространства со стильным и продуманным ландшафтным дизайном.

Виды из пентхаусов поражают воображение: масштабная панорама открывается на футуристические небоскребы Сити, искрящуюся гладь Москвы-реки, устремившиеся в небо сталинские высотки и зеленые парки. Встретить рассвет или насладиться закатными лучами солнца в бликах Москвы-реки – панорамные окна наполняют пентхаусы мягким естественным светом.

Введите код из смс
Цены на некоторые объекты, размещенные на сайте скрыты от публичного просмотра. Чтобы получить цены введите, пожалуйста, свои контактные данные.
Отправить ссылку на почту
Нажимая на кнопку, вы соглашаетесь c нашей политикой конфиденциальности
Спасибо за заявку!
Мы свяжемся с вами в ближайшее время для уточнения деталей подбора.